info@pinnacleinfotech.com
+1 713 780 2135
January 21, 2025
In construction design there are various approaches and practices that help visualizing the project at different stages. Every construction drawing is created to serve a purpose that mostly differentiates at the front of interfacial projections, data references, and elemental detailing.
To do a broader comparison, these drawings are categorically spread across different project timelines. As-built drawings, shop drawings, and design drawings are different in terms of depicting details and providing information about the project and are an integral part of the construction process and construction industry at large.
These drawings have different time zones and are created at different projection capacities and detailing merits at different phases of the construction process.
Let's decode and get a clear idea of what As-built Drawings are and how these are different from the other drawings in terms of design intent, purpose, detailing, representation, utility, and application.
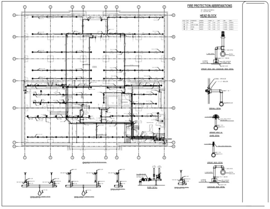
As-built drawings are the final set of drawings that provide a complete representation of the construction site, including actual markups, exact dimensions, accurate geometry to scale, and location of all components as they are in the project. These are essentially the drawings that are created after shop drawings and design drawings as a part of the closeout package and generally include final revisions and enhancements referring to the 'exactly-as-constructed' details of the building project.
As-built drawings provide a complete picture of the completed construction project. This makes sure that project stakeholders get a comprehensive and detailed record of the construction to analyze the final output, perform curative action, or plan for future expansion.
It includes in-depth and far-reaching details of the project depicting the complete structural flow, engineering plan, material specifications, and construction data. It provides a complete visual representation of the structure with comprehensive details on scaling, sizing, dimensions, location, materials, installation, fabrication, resources, unexpected obstructions, with important dates and engineer notes.
For any construction project to be driven successfully, project managers and process facilitators look for complete structural prototypes that provide comprehensive information about the final output and status of the project.
This is important in many ways. It helps project stakeholders to be in control of the data and resources that may drive important current and future decisions regarding project planning, feasibility analysis, cost control, facility management, and project expansion.
These drawings are also important in cases where building owners and managers look for ownership changes, regulatory sign-offs, and financial reconciliations. Also, as the building structure gets frail with time these drawings play a winning role in keeping structural elements and functional systems in good shape and aid in managing and maintaining efficiency.
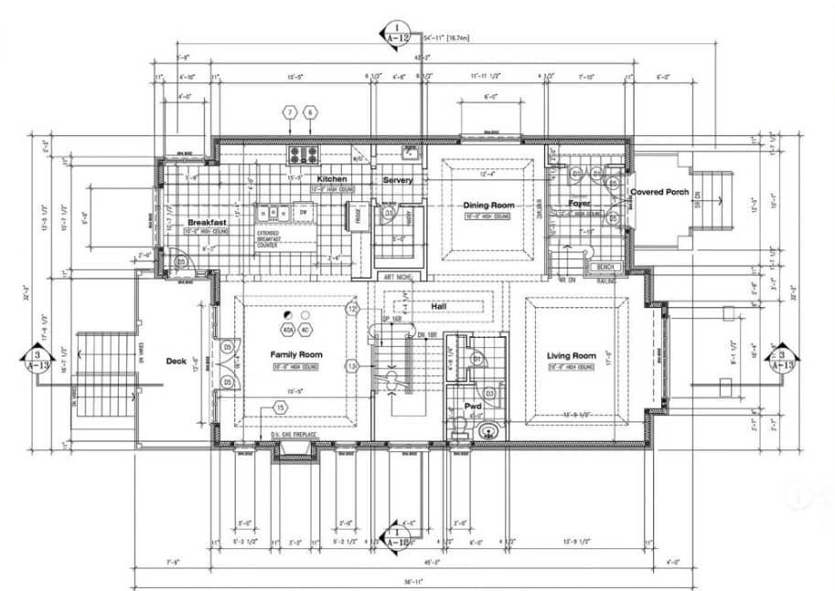
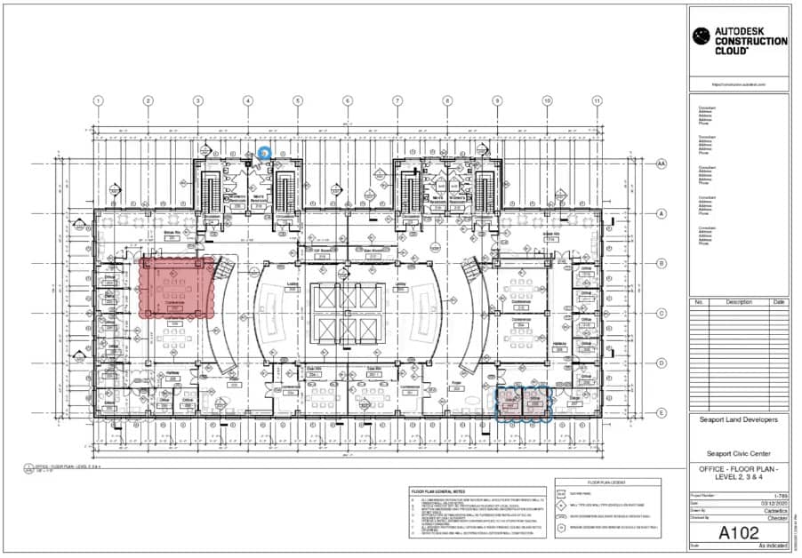
Design drawings are also known as construction drawings and are essentially the detailed construction blueprints of the project. Creating these drawings require special skills and understanding of the construction workflows, hence these are meticulously prepared by experienced architects and construction engineers. These drawings include preliminary sketches and plans that are mostly taken up in the first stage of design before any construction work starts and include detailed specifications of complex concepts of construction.
Design drawings or construction drawings typically include drawings that showcase the proposed plan of construction to the project owners and managers to take approvals for finalizing designs and planning workflows. These drawings work as a bridge between design and construction of the project. Design drawings generally include Architectural drawings, MEP drawings, Elevation drawings, Cross-section drawings, Site plans, Floor plans, and Block plans.
Shop drawings are also referred to as fabrication drawings. These are a crucial part of the construction process and become a part of construction projects in the pre-construction phase followed by design drawings. These drawings serve as a detailed illustration of structural and system components used in the project. Shop drawings depict all the components used in structural, mechanical, or electrical systems, serving as detailed versions of the original design drawings created by architects and engineers.
These drawings are not created to propose any concept of design but rather work as a walking manual that provides detailed information and instructions on how the structural flow and component placements are planned. This helps the building contractors, fabricators, and various types of suppliers to produce, assemble, and deploy building components resourcefully.
Here are the main differences between design drawings, shop drawings, and as-built drawings:
Design drawings are created in the first stage of the design phase in the pre-construction stage to guide the entire design process and form the base for shop drawings. Shop drawings are created before the actual construction begins to ensure the components are accurately planned and placed. As-built drawings are created after the final construction work is completed. So, all of these drawings are created at two extreme ends of the project lifecycle and serve as important guiding and reference tools for a running or a completed project.
Also Read : Explore Our "Engineering and Design Services"
The primary purpose of design drawings is to convey design intent. These drawings aim at communicating the vision that the presiding team of architects and designers start working on the project with. Shop drawings are typically focused on illustrating how different components will be placed in the building structure. They deliver precise visuals of how different construction elements will fit in place together. Shop drawings provide a detailed view of how the system components will be fabricated, assembled, and installed at the construction site. Alternately, final as built drawings are about documenting the actual details of construction, analyzing the output, applying necessary revisions, and getting a complete data-backed model ready for future reference.
Also Read: Types of Design and Construction Drawings: A Detailed Guide
Design drawings or construction drawings are the firsts of drawings in a construction project. These drawings provide the proposed blueprint of the construction workflow. These are essentially created to show the 3D, sectional, and elevation views of construction. Creating shop drawings, BIM professionals aim to show the visual plan of the proposed building workflow and system components to provide a chartered workplan to contractors and engineers. However, as-built drawing is a way to present the final output in a data-driven and detailed visual illustration of everything that is part of the structure.
Design drawings may be altered in case of addition of new design elements. It can also have omission changes if any elements are removed from the project. Additionally, if there are any substitutions or changes in work methods, design drawings may be altered. Shop drawings, due to their order in the construction documentation timeline, can accommodate procedural changes and edits till the actual construction work is not started. However, as built drawings are created once the building process is over and provide final visual representation of the project that goes as a part of the submission package and can't be changed or altered.
Design drawings are primarily used as a work of approval and planning for construction and are mainly used by architects, engineers, and regulatory bodies. Shop drawings are an essential part of every type of construction project and include different aspects of construction planning at the fundamental level. These drawings provide a base for different project operations and are used by different trade contractors, providing vital support to mechanical drawings, plumbing drawings, electrical drawings, architectural drawings, and other construction resources and documents. However, as built drawings serve large scale infrastructure and commercial projects as they involve higher budgets and heavy operative maintenance and mostly require future modifications and legal compliances. As they provide a complete detailed record and actionable data support, as built drawings are highly important and applicable for large construction projects.
Design drawings can be created by different professionals like architects, engineers, contractors, and even suppliers, as a first visual portrayal of the proposed construction plan. Shop Drawings are typically drawn by contractors, manufacturers, and suppliers and are focused on components manufacturing and assembly processes. Shop drawings aim at getting the placement and fitment of the components right along the structural built. As built drawings are prepared by contractors and sub-contractors. Creating as builts, they aim at defining and portraying the final structure with consolidated project data and review details to keep an end-record of the project. This helps them to manage future project requirements, through better facility management, cost control, and value compliance.
As-built drawings, design drawings, and shop drawings each play unique roles but work together seamlessly to drive construction success. At the initial stage, design drawings establish the initial vision and shop drawings detail components for fabrication, however, once the project is complete, as-built drawings capture every change made during construction and provide the final drawing of the output for records. This collaboration optimizes project timelines, enhances accuracy, and supports process compliance. By documenting the entire process these drawings provide a comprehensive resource that aids in future maintenance, renovations, and efficient facility management.
Accurate as-built drawings ensure a reliable record of the completed project by reflecting any deviations made during construction. They aid facility managers, support future repairs, renovations, and provide essential information, including exact dimensions and safety systems. This improves long-term maintenance and optimizes building management.
As-built drawings are invaluable for future work as they provide a detailed blueprint of the completed project. They document any adjustments, connection details, and safety systems among other as-constructed aspects to give contractors and project managers the insights needed to plan efficient renovations and manage the facility most resourcefully and efficiently.
As-built drawings provide facility managers with detailed instructions on mechanical systems, safety installations, and structural adjustments made during construction. This precise documentation aids in managing repairs, performing routine maintenance, and planning upgrades, ensuring smooth facility operations over time.
Red-line drawings are preliminary, marked-up documents used to record changes as construction progresses. They help general contractors and design teams note alterations from the original plan, eventually translating into accurate as-built drawings that document the completed project, including exact dimensions and final adjustments.
Yes, as-built drawings are essential for building permits as they document any on-site modifications from the original design. By showing the final construction details including material availability and exact dimensions, as-built drawings support regulatory compliance and streamline the permit approval process for specific projects.
How Important are Floor Flatness and Levelness in Construction
What is Revit Family Creation and How to Work On It?
Table of Contents